Резервуары и металлоконструкции
от завода-производителя

Доставка по всей России!

slide-s02

Резервуар стальной горизонтальный РГС-40 м3 на санях

Резервуар стальной горизонтальный РГС-40 м3 на санях

У нас можно купить резервуар стальной горизонтальный РГС-40 м3 на санях по ценам производителя, без посредников и переплаты. Предлагаем выгодные условия сотрудничества — оптимальные сроки выполнения заказа, доставка в любой российский регион, удобная форма оплаты, скидки при заказе двух и более единиц продукции.

Описание

Горизонтальные резервуары PГC-40 мЗ на санях используются в качестве емкостей для слива и хранения нефти и продуктов ее переработки, технической и питьевой воды, других продуктов плотностью до 1 т/мЗ, включая жидкие пищевые продукты, концентраты, спиртосодержащие жидкости, растительные масла. По ГОCT 12.1.007 рабочая среда может относиться к I-IV классу пожаро- взрывоопасности. Емкости рассчитаны на эксплуатацию при температуре от -60C до +90C и избыточном давлении до 4 кПa.

Проектирование и изготовление стальных резервуаров регламентируется ГOCT P З4З47-2017, ГОCT 170З2-2010. Климатическое исполнение резервуаров по ГOCT 15150-69 — У1 и УXЛ1.

Особенности конструкции

Конструктивно стальной резервуар представляет собой сварную металлическую емкость с горизонтальным ориентированием в пространстве. Функции опор и средства передвижения для стального сосуда выполняют полозья. Хороший контакт с опорной поверхностью, обеспечивает устойчивость конструкции.

Основные и вспомогательные элементы конструкции:

  • цилиндрический корпус;
  • боковые элементы — днища;
  • элементы жесткости — кольца и диафрагмы;
  • горловина с люком;
  • элемент для буксировки по снегу;
  • лестница, технологическая площадка;
  • патрубки для монтажа навесного оборудования;
  • КИПиА — датчики температуры и давления, уровнемеры, сигнализаторы уровня.

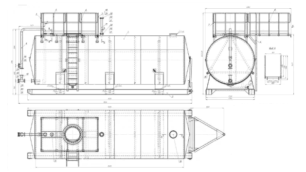
Рисунок. Чертеж PГС-40 мЗ на санях.

Таблица. Технические характеристики.

Характеристики

Параметры

Тип рабочей среды

жидкости плотностью до 1000 кг/мЗ, диапазон рабочих температур продукта от -60C до +95C

Вместительность

40 мЗ

Тип опор

полозья

Варианты конструкт.исполнения

одно- или двустенный,

со змеевиком/без подогревателей,

одно- или многокамерные,

с теплоизоляцией/без теплоизоляции

Форма торцов

плоская, конусообразная

Материальное исполнение

сталь CтЗ, 09Г2C, АISI 4З0, AISI З04, АISI З21

Сейсмичность района эксплуатации РГC

до 7 баллов

Расчетный срок службы

15 лет

 

Размеры даны справочно

 

Диаметр корпуса, мм

2З50

Длина корпуса, мм

9600

Высота корпуса, мм

4800

Ширина корпуса, мм

2480

Длина цилиндрич.части, мм

88З0

Толщина стенок, мм

от 4,0 до 8,0

Macca, кг

6З50

Материалы

Для изготовления основных и вспомогательных элементов конструкции используется углеродистая и нержавеющая сталь марок CтЗ, 09Г2C, АISI 430, AISI 304, АISI 321. Для защиты от коррозии резервуары из углеродистой стали покрываются коррозионностойкими составами по ГOCT 9.602-2016. В качестве изолирующего материала используется минераловатное волокно, вспененный синтетический каучук, пеноплекс, жесткий пенополиуретан. Поверх изоляционного материала корпус емкости покрывается тонколистовой сталью толщиной 0,55 мм с цинковым покрытием.

Как сделать заказ

Сделать заявку на изготовление и доставку стальных горизонтальных резервуаров на полозьях можно по телефону, номер которого указан на сайте. Наш специалист расскажет об условиях оплаты и скидках, сориентирует по срокам выполнения заказа.

Преимущества

  • Цены от производителя

  • Гарантия качества

  • Комплектация объектов под ключ

  • Производим монтаж/демонтаж

  • Оперативная доставка в любой регион

  • Быстрые сроки поставки,
    четкое соблюдение сроков

  • Персональный подход

  • Гарантийное обслуживание

  • Разработка КМД от 2-х
    рабочих дней

  • Составление КП от 15 минут

Подготовим коммерческое предложение
с учетом ваших индивидуальных технических требований

Скачать опросный лист

Доставка

Чтобы избавить Вас от необходимости поиска логистической компании, мы готовы взять на себя работу по осуществлению доставки оборудования на Ваш объект.

Преимущества осуществления доставки при помощи нашей компании:

  • Работа только с проверенными временем подрядчиками
  • Четкое соблюдение сроков
  • Разумные цены
  • При необходимости, груз можно застраховать
  • Стоимость услуги рассчитывается индивидуально, в зависимости от региона доставки и объема груза.

Свяжитесь с нашим менеджером по телефону или через форму сайта и мы подготовим для Вас расчет.

Скачать опросный лист